00%
Chargement

Canetoise

-

Maître d’ouvrage : Privé
Architecte : Atelier Laurie-Anne Foissier
Surface : 125 m2
Montant des travaux : 150 000 € HT
Années : 2018 - 2019
Photographies : Florence Vesval

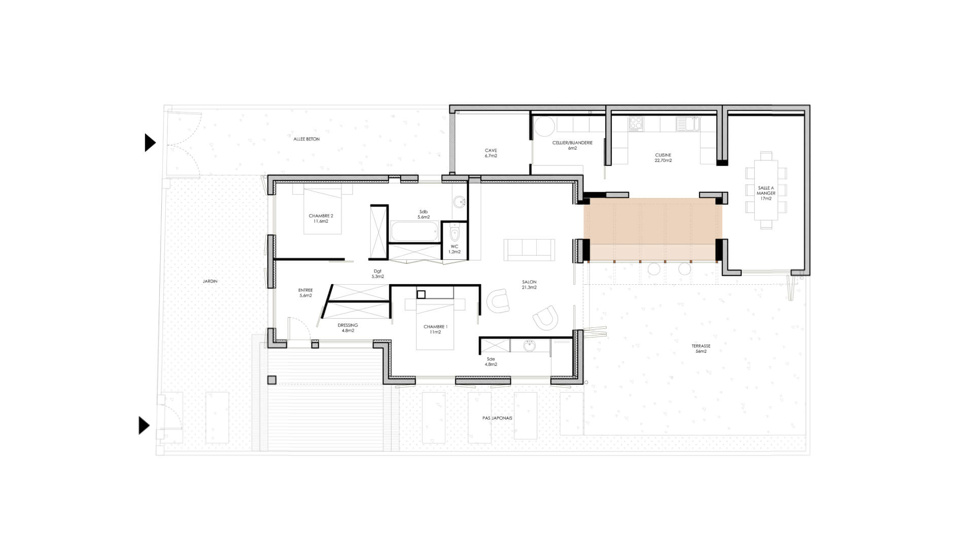
L’essentiel du projet réside dans l’insertion d’un nouveau volume en bois et verre. Situé à l’articulation entre divers édicules et la maison originelle, il répond à lui seul aux problématiques de connexion des différents espaces ainsi qu’aux problématiques d’harmonisation des façades.

L’espace imaginé constitue plus qu’un élément de liaison. Lui donner de l’épaisseur a permis de lui offrir un véritable usage : il devient lieu de convivialité, tourné vers les extérieurs.

Scroll...
keyboard_arrow_left
keyboard_arrow_right