00%
Chargement

Les Elmes

-

Maître d’ouvrage : Hôtel des Elmes
Architecte mandataire : Atelier Laurie-Anne Foissier
Surface : 1000 m2
Montant des travaux : 800 000 € HT
Années : 2020 - 2021
Photographies : Florence Vesval

L’emplacement privilégié de l’hôtel en front de mer en a fait le point de départ du projet.

L’ensemble des chambres a été repensé de sorte à mettre en exergue les vues sur la Méditerranée. Aussi, le vocabulaire et les matériaux utilisés se veulent en accord avec le site : le bois, la terre cuite, les couleurs sable sont utilisés pour retrouver sens et unité. La démarche environnementale

Un point important du projet a également résidé dans sa rénovation énergétique afin d’être moins énergivore et plus vertueux.

Scroll...
Extrait plan R+2
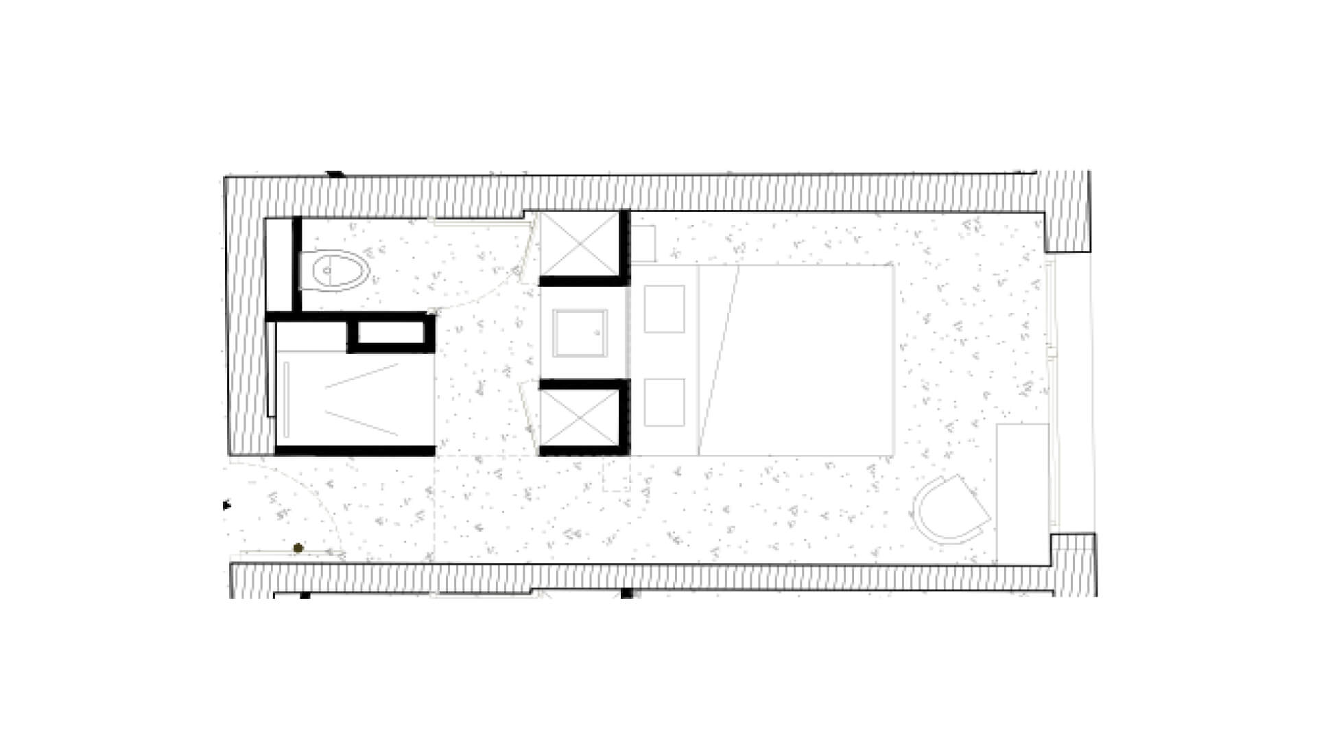
Cellule type vue jardin
Cellule type vue mer
Cellule suite
keyboard_arrow_left
keyboard_arrow_right