-
Maître d’ouvrage : Must immobilier - Coldwellbanker
Architecte : Atelier Laurie-Anne Foissier
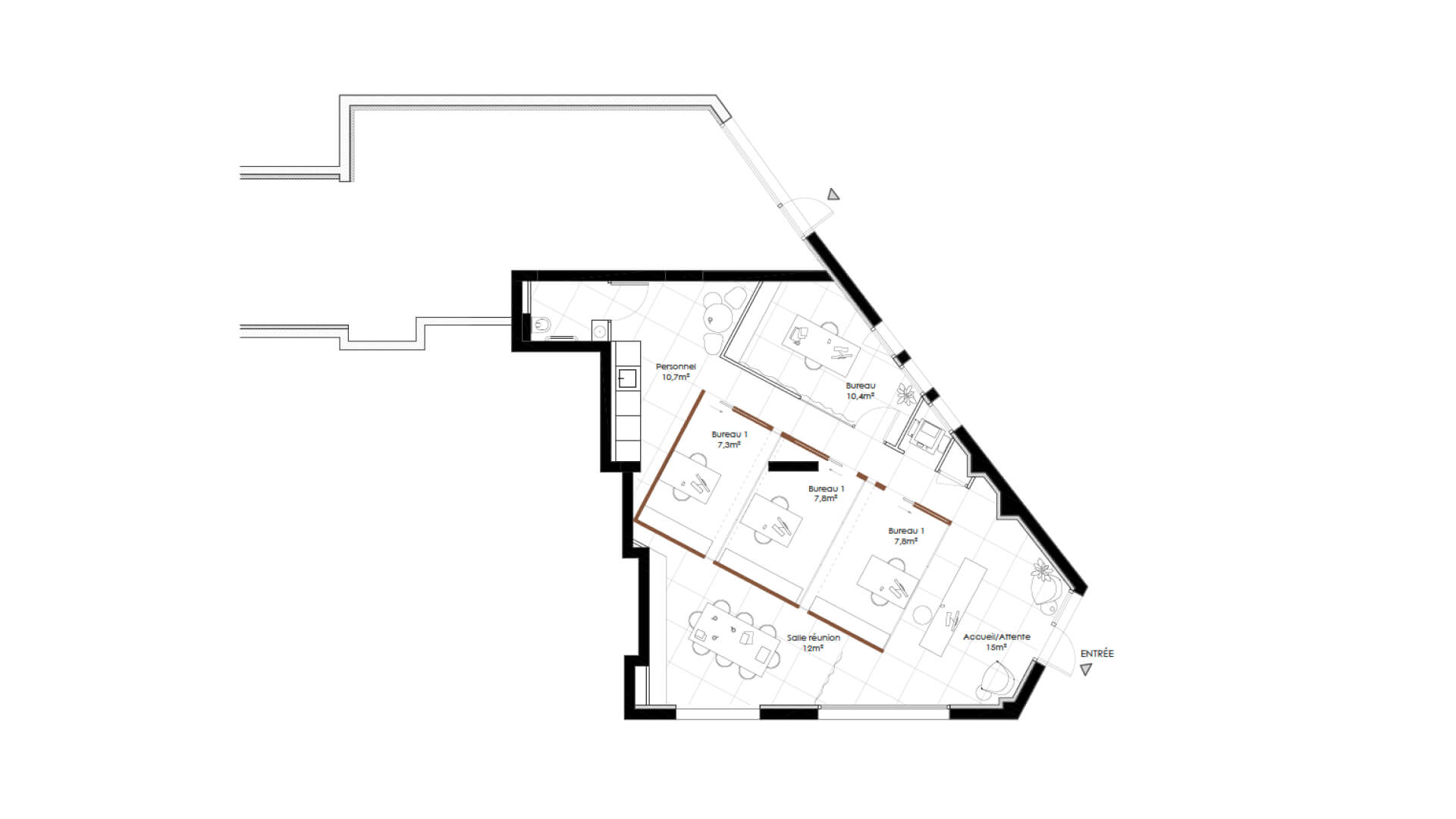
Surface : 95 m2
Montant des travaux : 100 000 € HT
Années : 2019 - 2020
Photographies : Florence Vesval
Un grand volume en bois est implanté au cœur du projet. Autour ce celui-ci s’organisent les espaces partagés. Cet ilot de bureaux vient structurer l’ensemble en créant une perméabilité et une fluidité globale.
Il est marqué par sa faible hauteur et par son traitement en noyer. A l’intérieur, le volume est monochrome : le blanc immaculé sur les sols, murs et plafonds contribue à la luminosité des espaces de travail venant de leur grande façade vitrée et des failles latérales.
Scroll...






